Dobrodošli na stranice “Stanovi – Zaprešić – Laduč”
Projekt započet 2023. do kraja 2025. ušao je u završnu fazu izgradnje.
Na raspolaganju za prodaju je ukupno 18 stanova.
Na raspolaganju su stanovi za prodaju koji se nalaze u višestambenom objektu s tri nadzemne etaže koji se gradi po višem standardu gradnje pridržavajući se načela “zelene gradnje”
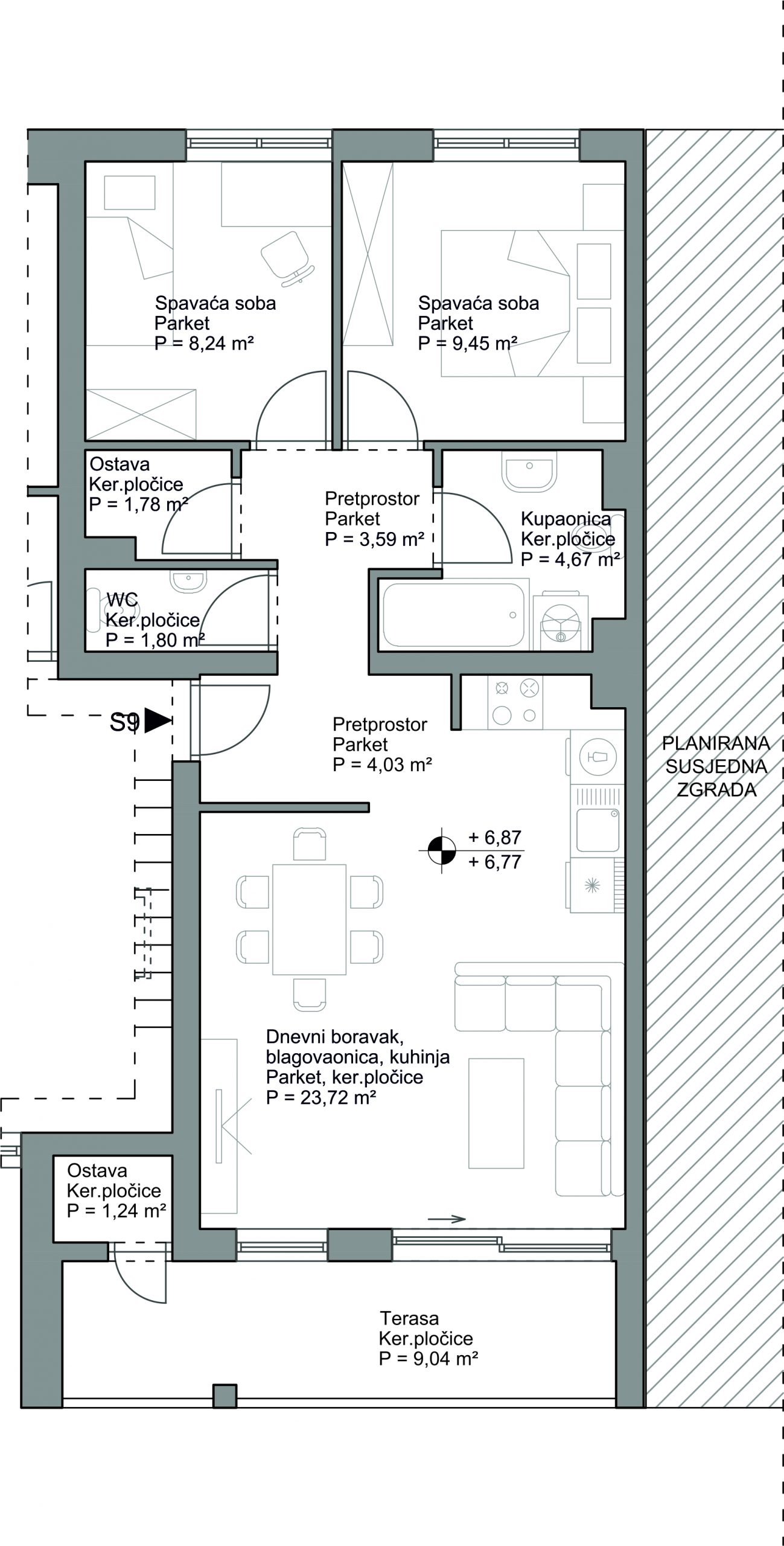
Svaki stan ima jedno spremište i jedno parkirno mjesto.
Mjesto Gornji Laduč – općina Brdovec – nalazi se nadomak Zagreba. Sama lokacija ističe se izuzetno dobrom prometnom povezanošću s gradom Zagrebom. Autobusna stanica nalazi se ispred same zgrade, a prigradskim vlakom do centra Zagreba vam treba svega 28 minuta.
S druge strane, lokacija stambene zgrade , kao i samog mjesta Gornji Laduč , nalazi se uz glavnu prometnicu za Republiku Sloveniju, tako su vam nadomak Laduča: Brežice i Čatež, popularna mjesta za trgovinu i razonodu u Republici Sloveniji.
Također možemo istaći blizinu škole, vrtića, trgovine i ambulante
Da bi udobnost i ekonomičnost Vašeg novog doma bila na višoj razini – prilikom gradnje zgrade koriste se moderni materijali poput fasade s grafitnim stiroporom koja uvelike štedi toplinsku energiju, a s istom svrhom ugradit će se PVC stolarija čija su troslojna stakla punjena argonom i ima ugrađene komarnike.
Za zimski period zgrada je opremljena etažnim plinskim centralnim grijanjem.
Raspoloživost stanova i njihove specifikacije možete pogledati u opisu niže na ovoj stranici.
Na sljedećim kontakt podacima možete dobiti sve informacije, odgovore na upite ili zakazati sastanak
broj telefona za upite je: 098 304 111 (Ivana)
Trenutni oglasi na Njuškalo.hr –
projekt “stanovi-zapresic-laduc.com”
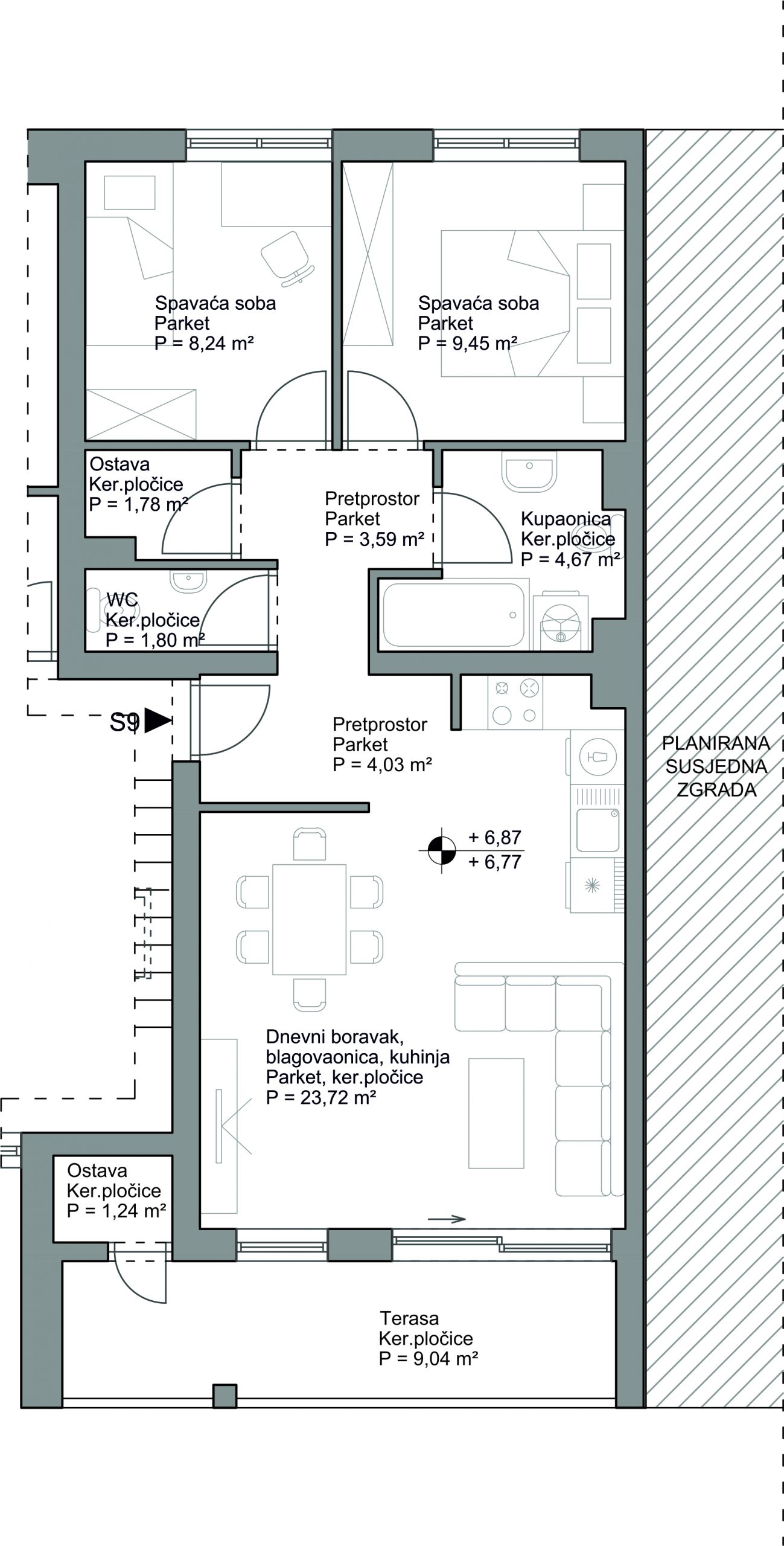
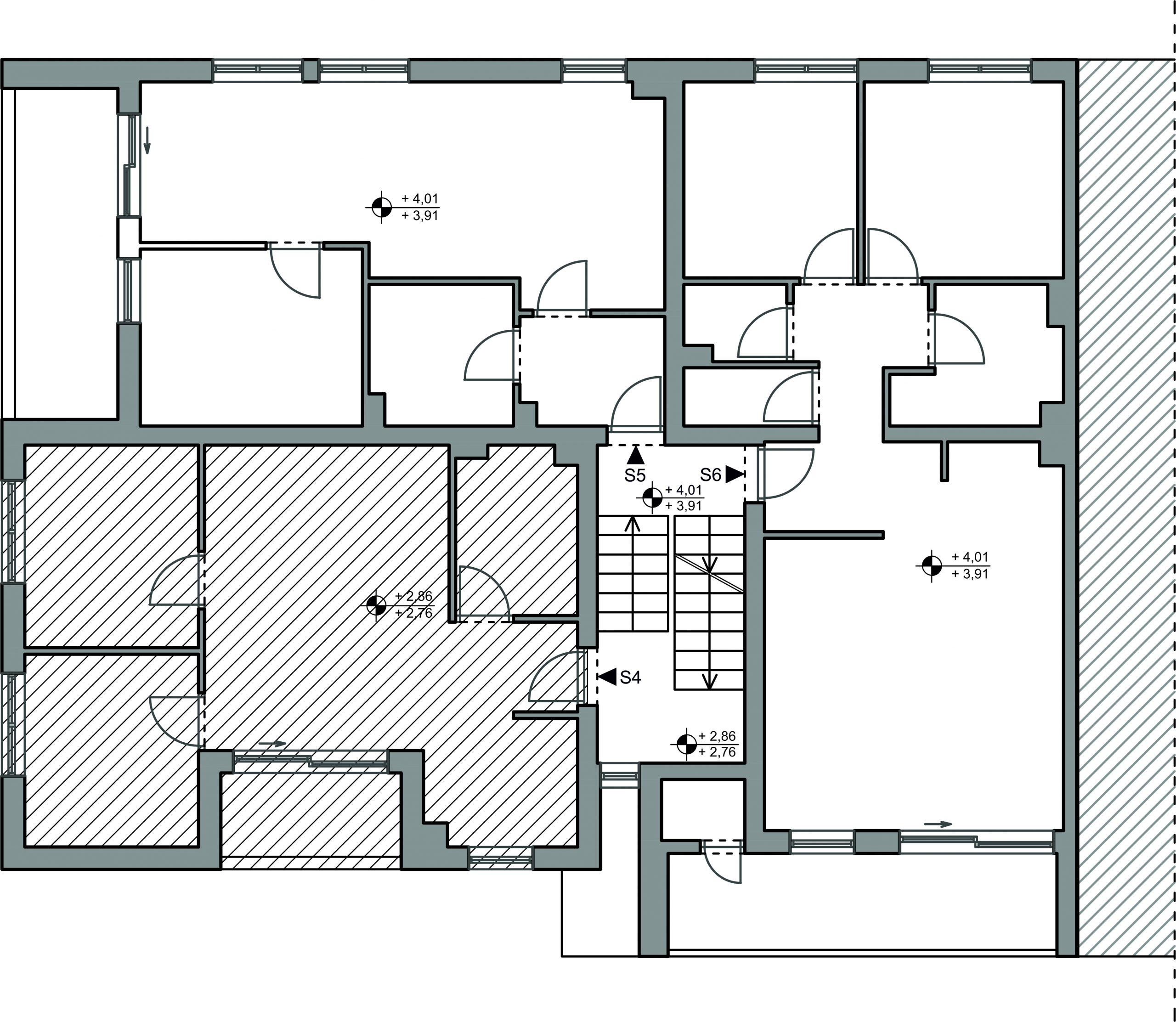
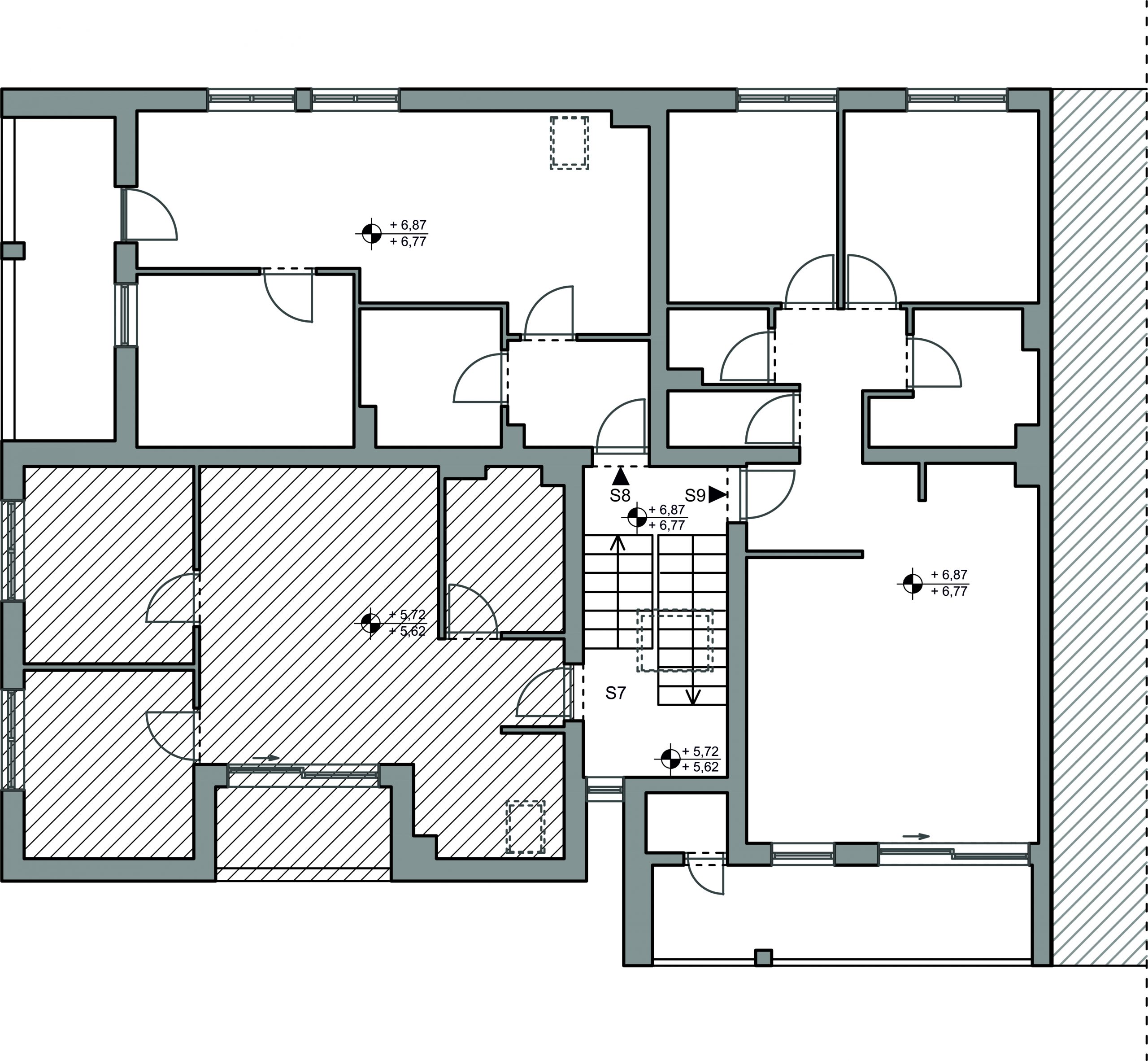
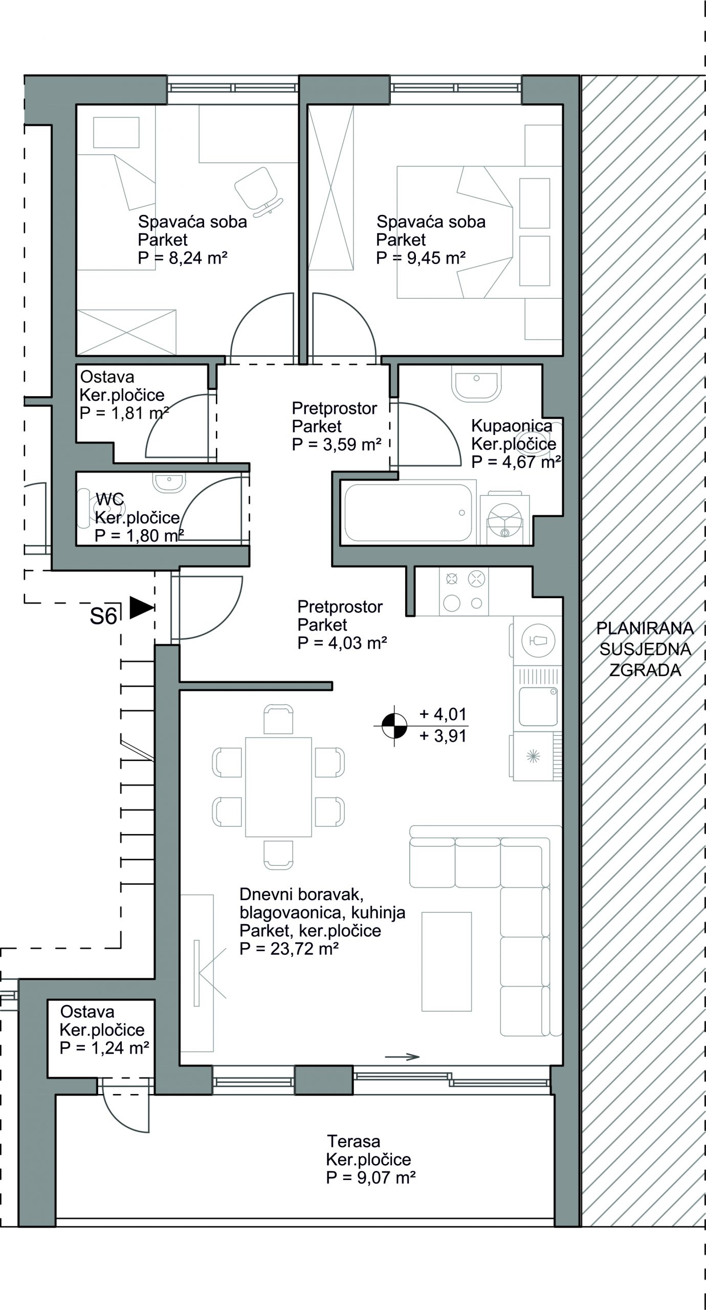
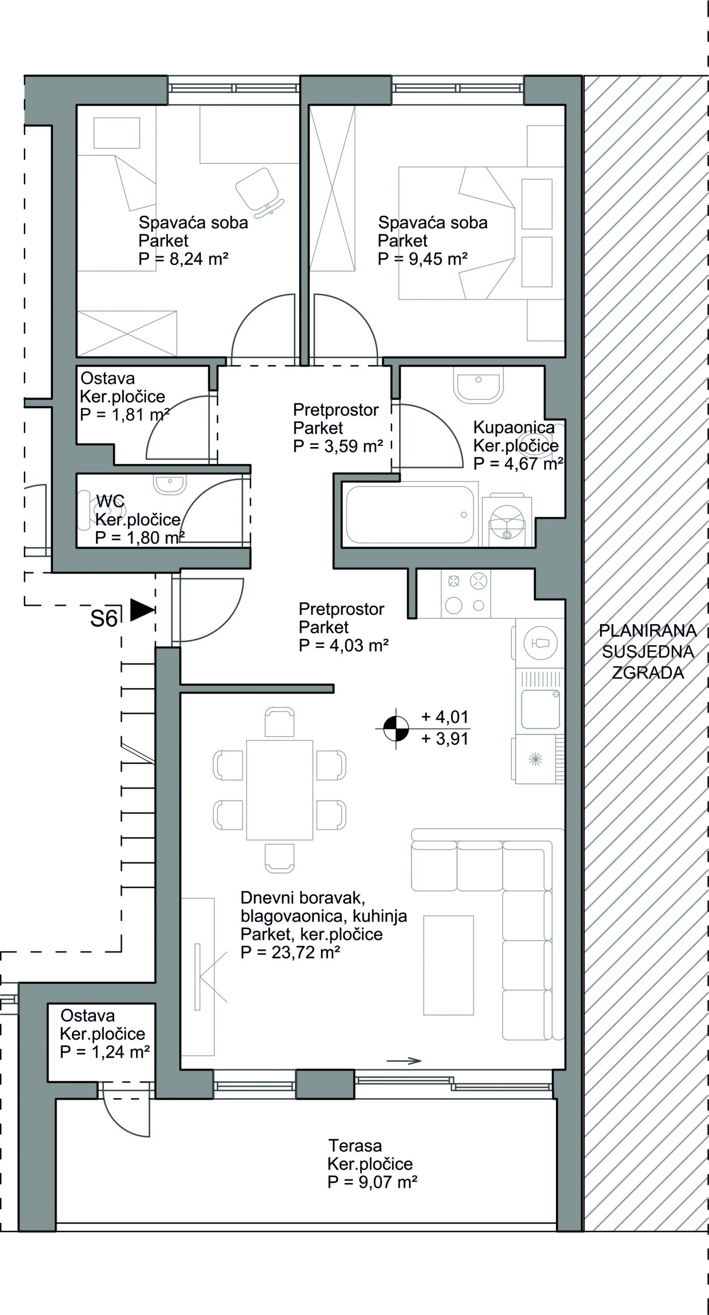
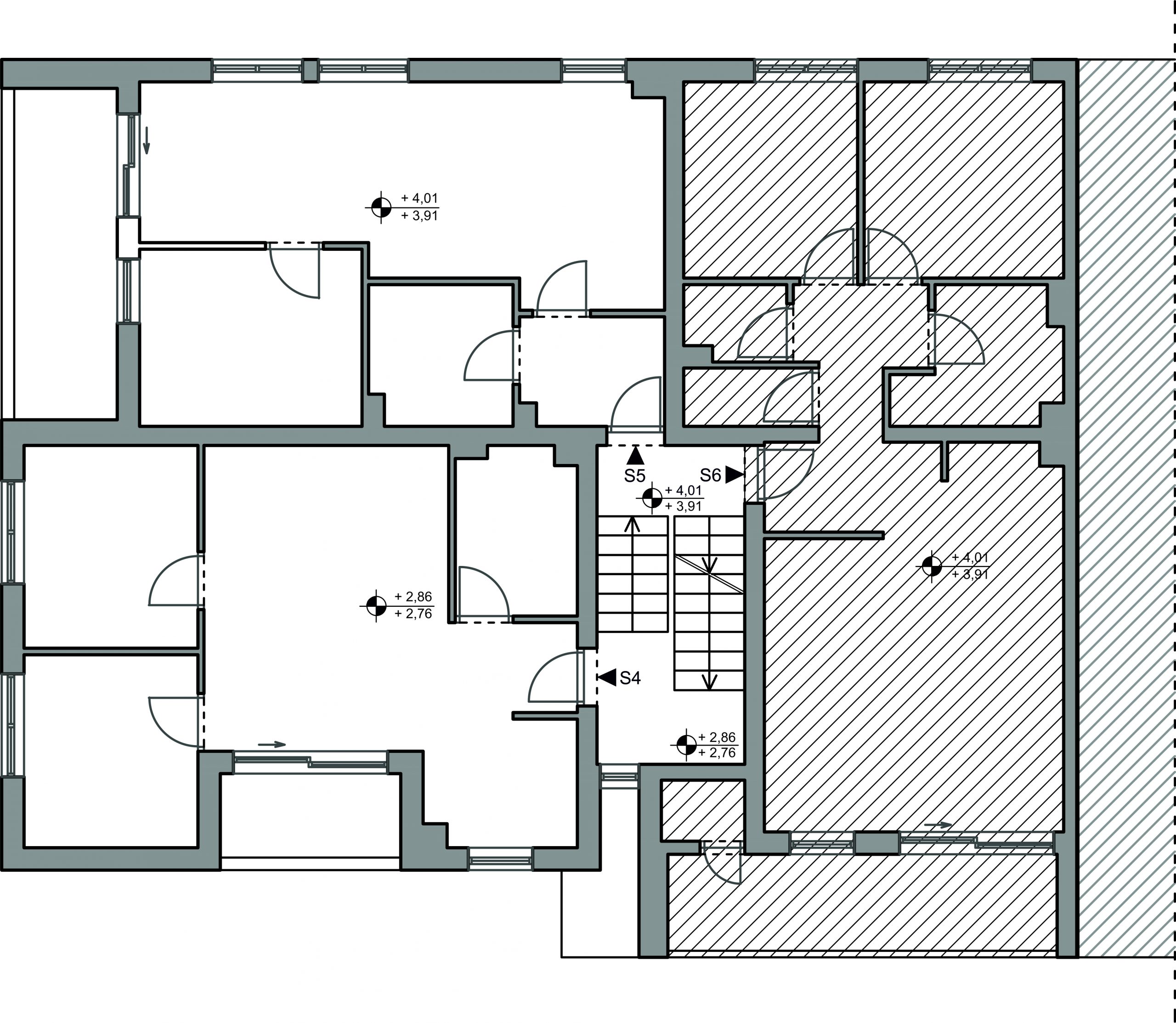
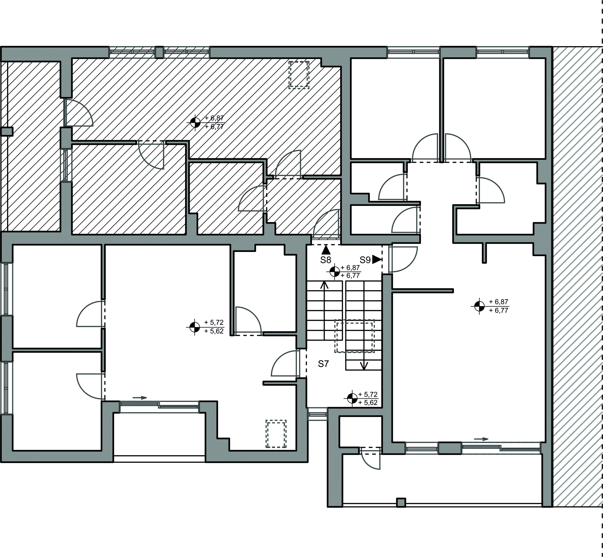
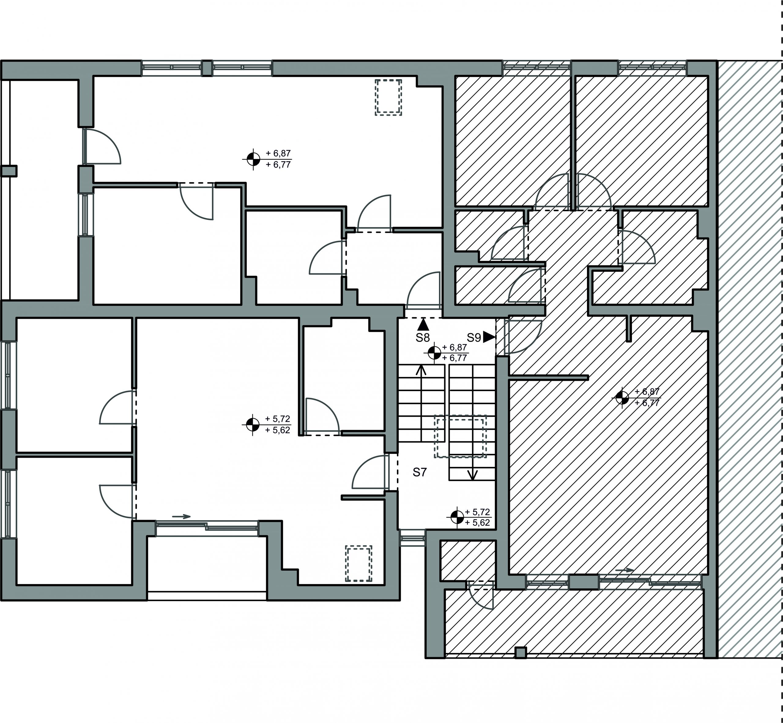
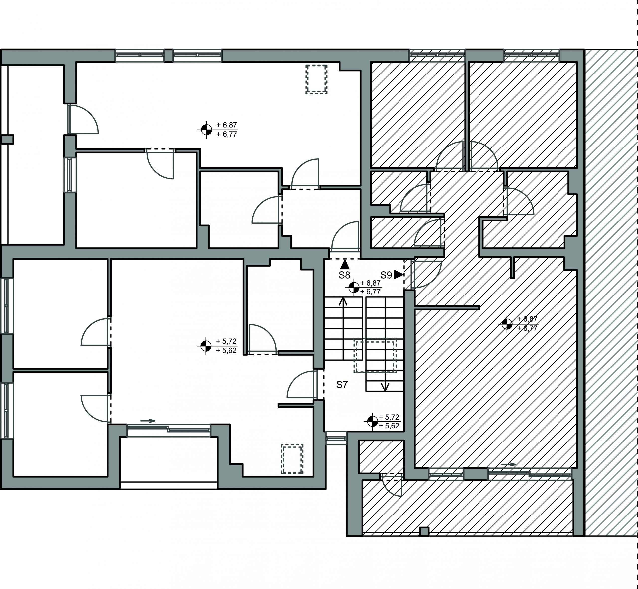
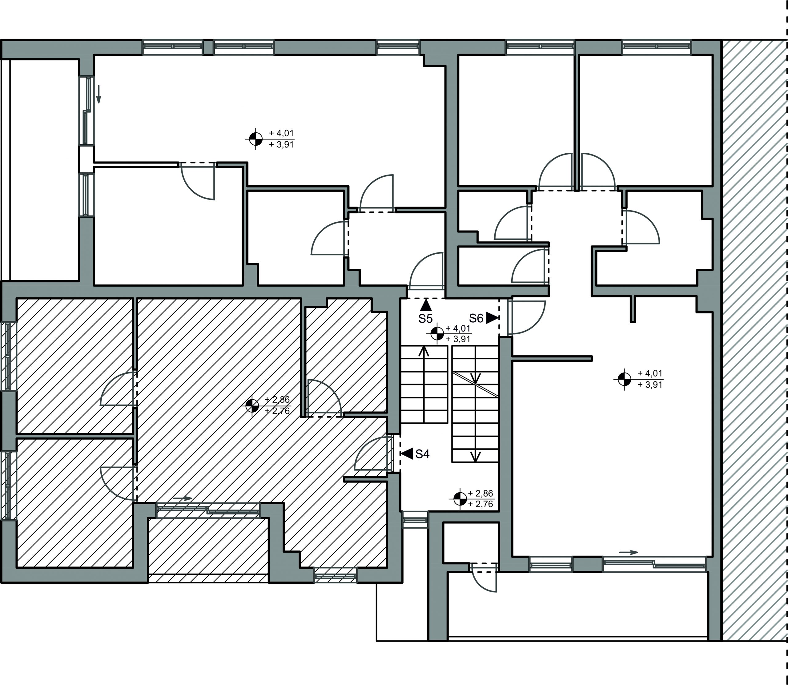
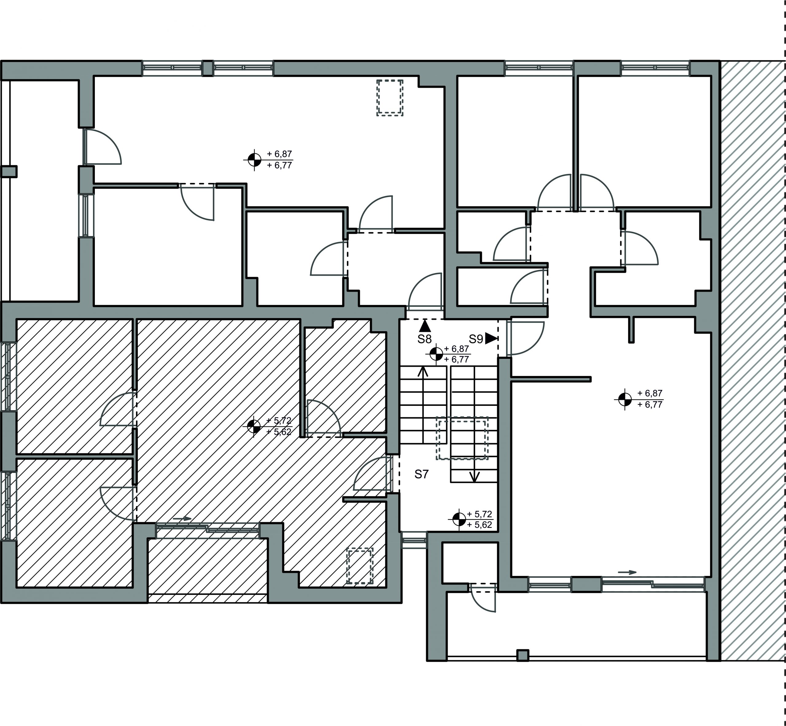
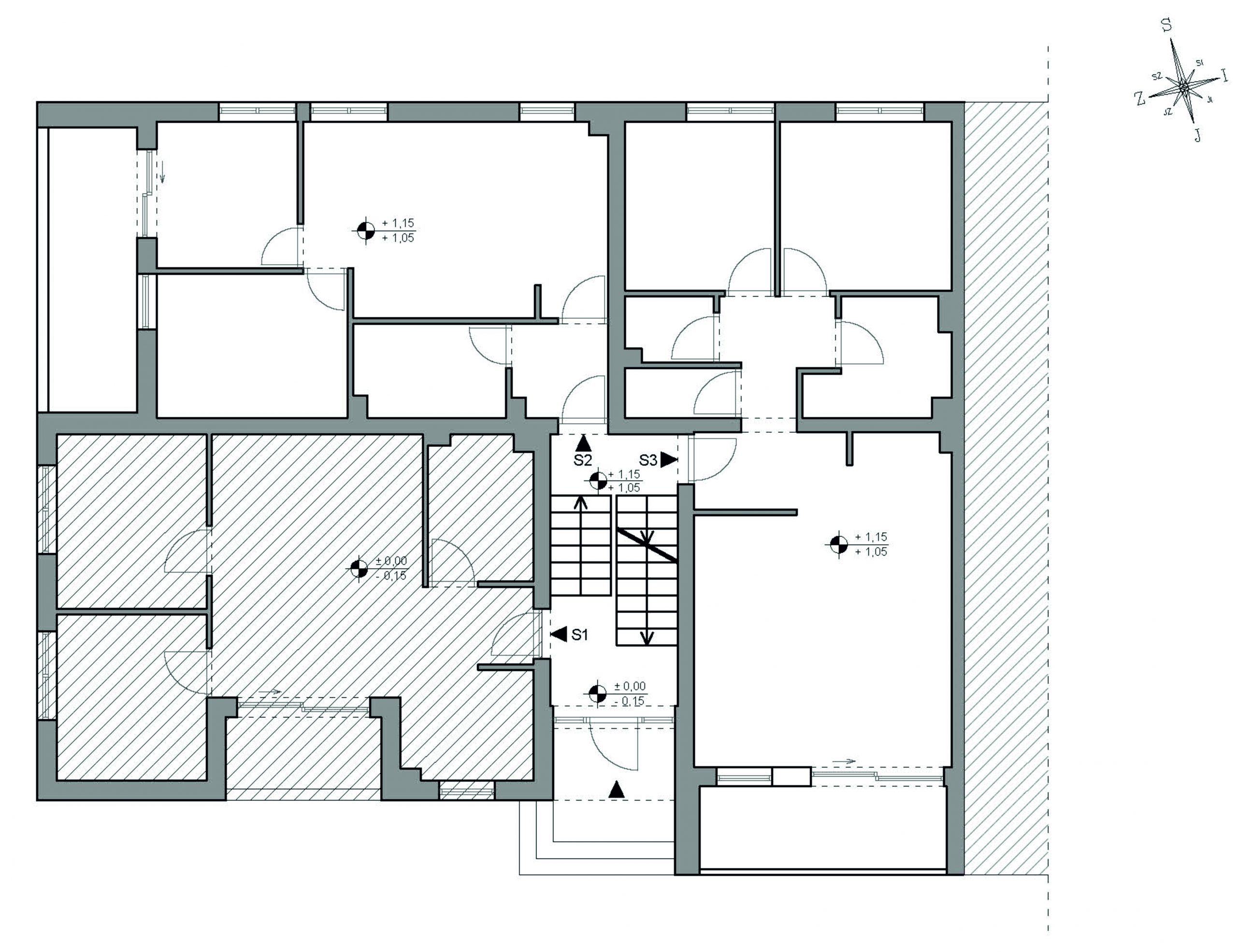
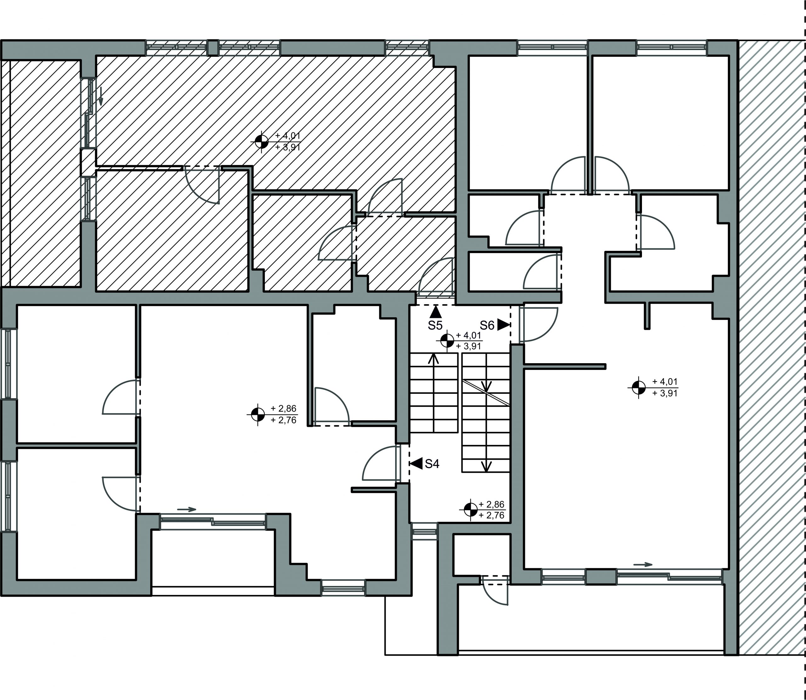
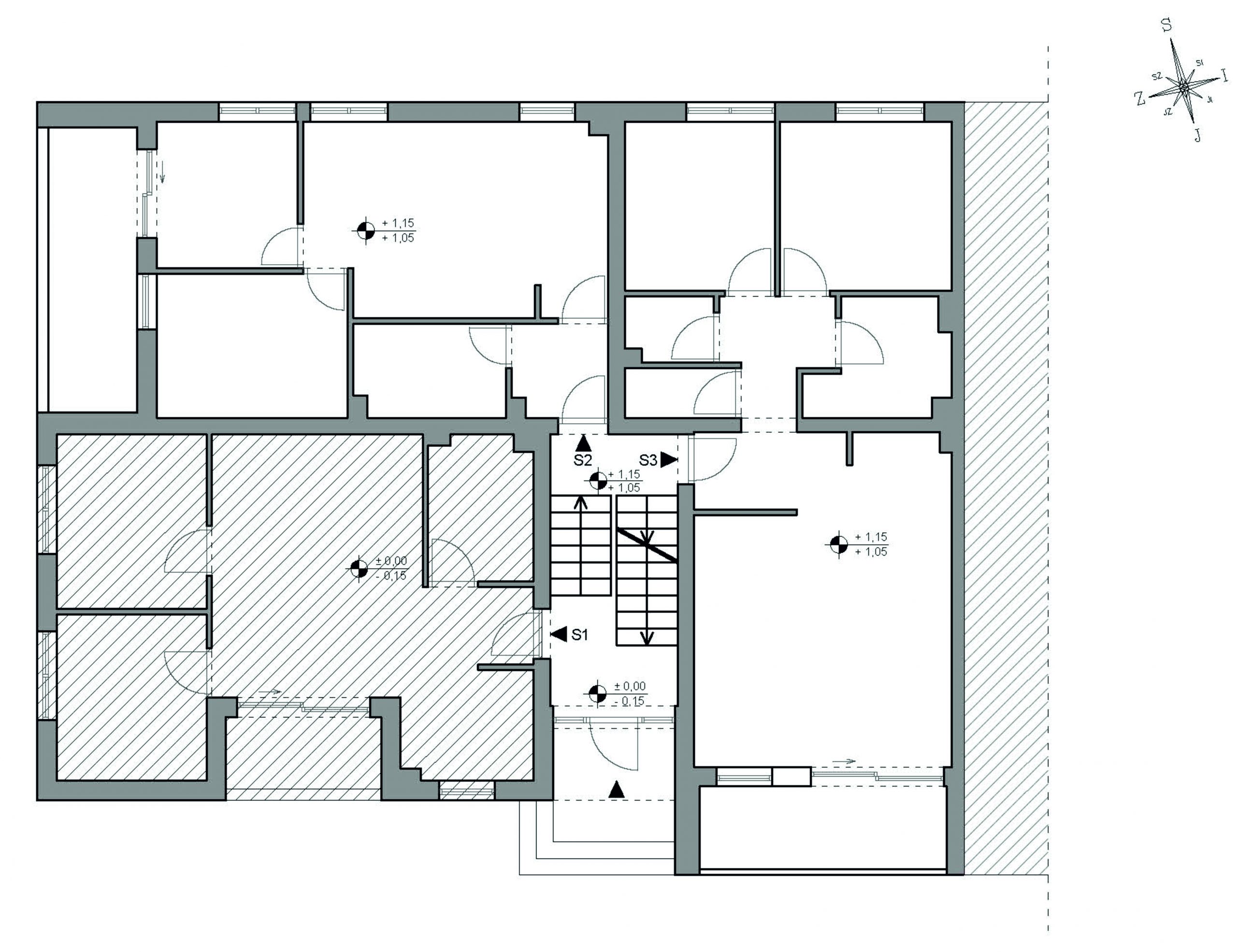
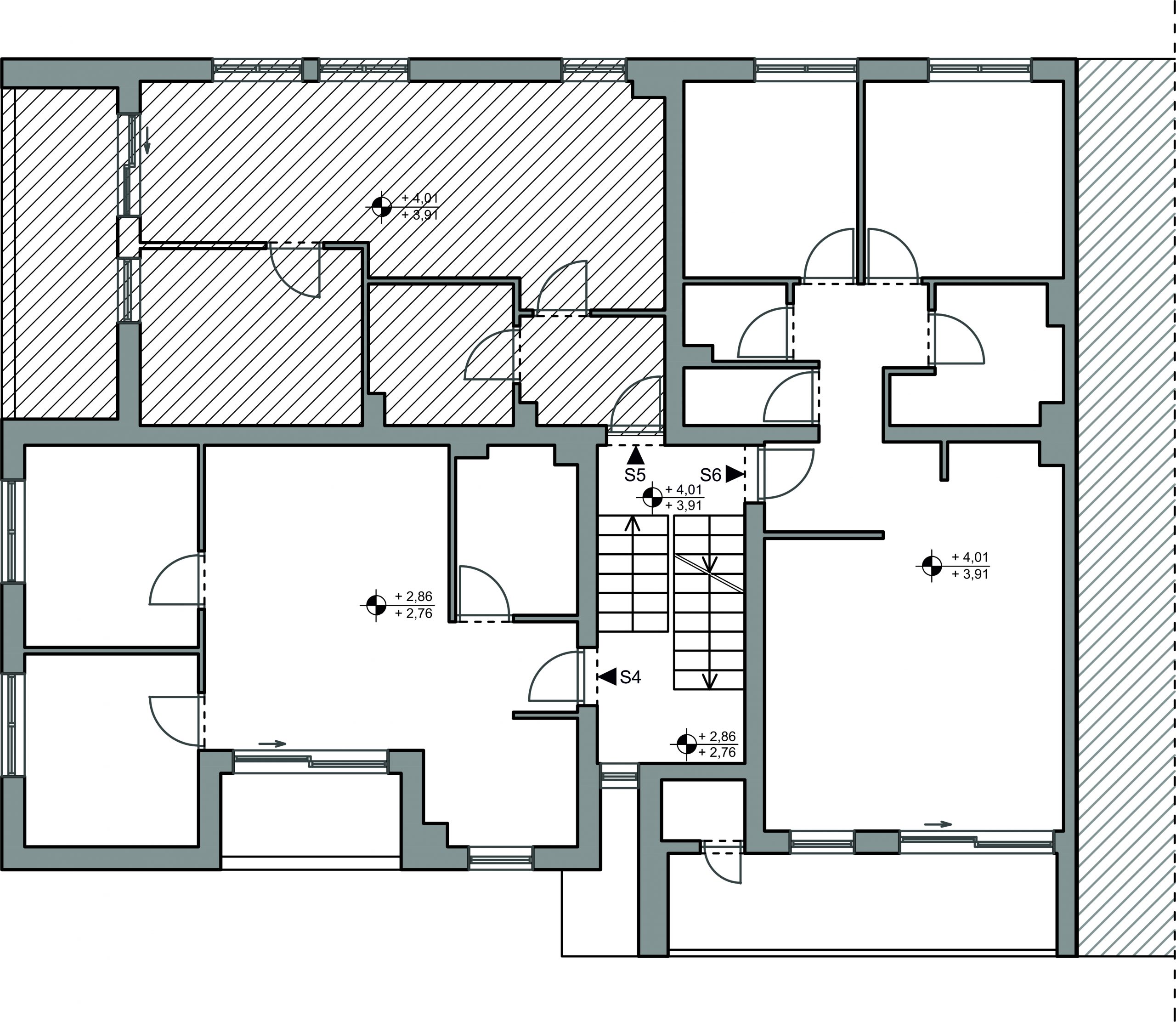
Zgrada se sastoji od tri etaže – prizemlja i dva kata. Raspored i pozicija svakog kata i stana zasebno opisana je i navedena u nastavku. Iste podatke kao i raspoloživost stanova možete provjeriti u nastavku ove stranice. Za sve ostale upite, informacije i rezervacije svakako nas kontaktirajte. Također, zgrada ima dva ulaza, te na svakom ulazu isti broj stanova(ukupno 18 stanova).
Okvirna cijena stanova podjeljena je u tri grupe, prema kvadraturi stana:
Dvosobni- 49,5 m2 – 146.000 € | Trosobni-53 m2 – 156.000 € | Trosobni-66,5 m2 – 196.000 €
za preciznije i detaljnije informacije svakako nas kontaktirajte.
STANOVI – Njuškalo oglasi
Za sve upite – stojimo Vam na raspolaganju
Radi lakše usporedbe specifikacije stanova – sve tablične podatke možete pregledati ovdje:
































